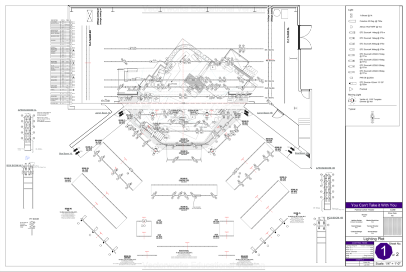
In Lighting Design 3, we explored different design processes so that we could formulate how we work best. The first show we used to explore this was You Can’t Take it With You. We worked through each stage of the design process with our professor Sharon Hazinga. The following pictures are paper work from this project that I created.




